본문으로 바로가기 메인메뉴 바로가기
Eco mover, Glocal SCNU

공지사항

공지사항

미래창조관 주변 가로등 설치공사 착공 알림에 대한 상세정보
미래창조관 주변 가로등 설치공사 착공 알림
작성자 김*원 등록일 2025.12.31

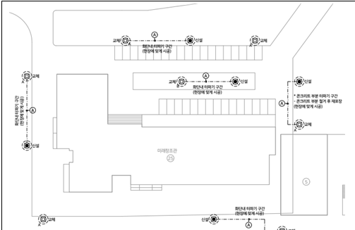
1. 관련: 시설과-8976(2025.12.10.) ?미래창조관 주변 가로등 설치공사 계획()?

2. 우리 대학교 미래창조관 주변 가로등 설치공사를 붙임과 같이 착공하였음을 알려드립니다.

. 공 사 명: 미래창조관 주변 가로등 설치공사

. 공사기간: 25.12.22 ~ 26.01.19 (29일간)

. 공사장소: 미래창조관 주변

IMG_093800.png

IMG_093807.png

미래창조관 가로등 설비 배치도

미래창조관 가로등 공사 범위

. 문의사항: 사무국 시설과(3110, 3111, 3125) .

첨부파일

전체댓글수총 0개 로그인 후 작성이 가능하며 욕설, 상업적인 내용, 특정사안을 비방하는 내용 등은 예고 없이 삭제될 수 있습니다.

0/ 500 byte

등록된 댓글이 없습니다. 여러분의 한마디를 남겨주세요~